
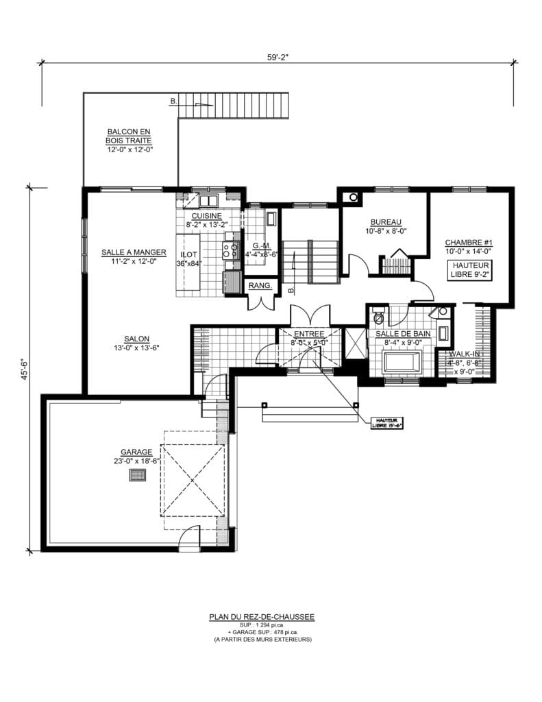
Main Floor

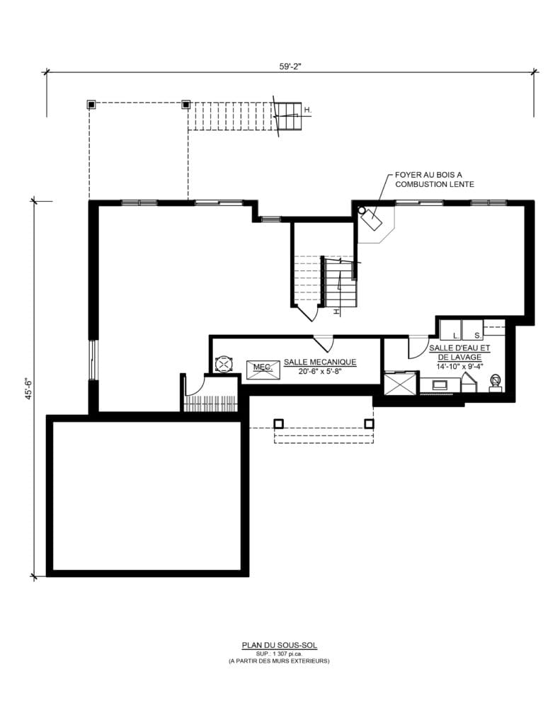
Basement Plan

Le Roscoff
$ 1,750.00
Plan’s details
Main floor : 1 294 pi² + garage 478 pi²
Bedroom : 2
Garage: simple door
The data is approximate and does not incllude the basement.
Le Roscoff
$ 1,750.00
Plan’s details
Main floor : 1 294 pi² + garage 478 pi²
Bedroom : 2
Garage: simple door
The data is approximate and does not incllude the basement.
Main Floor

Basement Plan

Farmhouse Home Model with Large Front Garage
- Width: 59’-2’’ (18,03 m)
- Depth: 45’-6’’ (13,87 m)
- Main Floor Ceiling Height: 9’-0’’ (2,74 m)
- Foundation Height: 8’-4’’ (2,54 m)
- Main Floor Area: 1,294 sq. ft. (120,22 m²)
- Garage Area: 478 sq. ft. (44,41 m²)
Description :
Discover our farmhouse-style home model featuring a large front-facing garage, combining timeless charm with modern functionality. The garage offers both interior and exterior access, making it ideal for everyday convenience and additional storage.
The bright entryway with a walk-in closet warmly welcomes your guests while helping keep your home organized. Enjoy an open-concept living room, kitchen, and dining area designed for comfort, connection, and family living.
The kitchen features a large island and a private pantry, perfect for cooking and entertaining. It blends style and practicality to meet the needs of modern families.
This model includes one bedroom and a versatile office that can easily be converted into an additional bedroom, offering flexibility to suit your lifestyle.
The spacious basement includes a wood-burning fireplace, bathroom, and laundry room, and can be customized to fit your needs—whether as a family room, playroom, recreational space, or additional bedroom.
Key Features:
Large single front-facing garage with dual access
Spacious entryway with walk-in closet
Open-concept living room, kitchen, and dining area
Modern kitchen with large island and private pantry
1 bedroom + office convertible into a bedroom
Customizable basement with wood-burning fireplace, bathroom, and laundry room
Elegant and welcoming farmhouse style
This model combines style, comfort, and versatility—perfect for families looking for a functional and inviting home. Enjoy a thoughtfully designed space with endless possibilities to create your dream home.
Additional information
| Bedrooms | 2 Bedrooms |
|---|---|
| Architectural style | Farmhouse |
| House type | Bungalow |
| Garage | Single Door |

Reviews
There are no reviews yet.